Warszawa Bielany
Wynajem
19559/642/OLW
Numer
19559/642/OLW
Data dodania
09 grudnia 2025
Lokalizacja
Warszawa, Bielany
Cena
12 000 PLN
Cena za m2
78.95 PLN / m2
Powierzchnia
152 m2
Stan deweloperski
NIE
Euro-House największa baza nieruchomości komercyjnych w Warszawie;
- Do wynajęcia narożny lokal handlowo-usługowy na Bielanach
- Usytuowany przy głównej ulicy z dużym natężeniem ruchu pieszych i kołowego
- Doskonale wyeksponowany, duże i szerokie witryny umożliwiają lepszą promocję marki
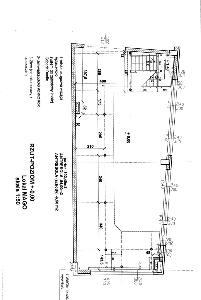
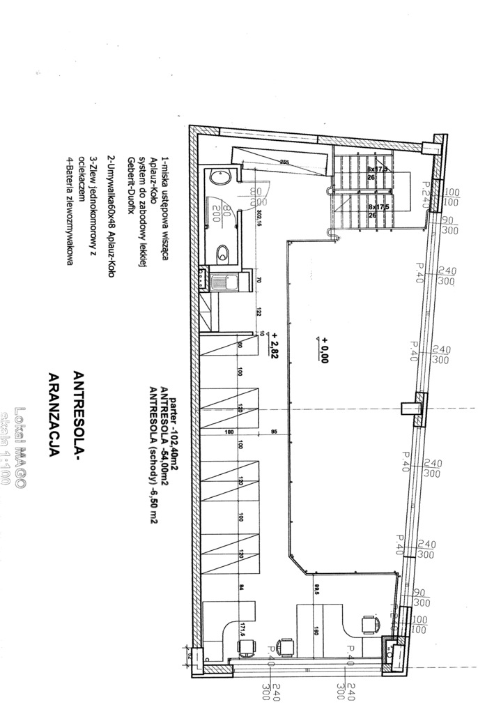
- Na metraż lokalu składa się parter 102m2 oraz użytkowa antresola 50m2
- Przed lokalem znajduje się duży parking ogólnodostępny
- Możliwe prowadzenie każdej działalności z wyłączeniem ciężkiej gastronomii
- Podana cena jest ceną netto, należy doliczyć VAT oraz opłaty eksploatacyjne
Zapraszam do kontaktu, z chęcią przedstawię nieruchomość!!
Sylwia Egier
Specjalista ds. Nieruchomości Komercyjnych
730 170 416
ul. Braci Wagów 20/1, 02-791 Warszawa
www.euro-house.waw.pl
- Do wynajęcia narożny lokal handlowo-usługowy na Bielanach
- Usytuowany przy głównej ulicy z dużym natężeniem ruchu pieszych i kołowego
- Doskonale wyeksponowany, duże i szerokie witryny umożliwiają lepszą promocję marki
- Na metraż lokalu składa się parter 102m2 oraz użytkowa antresola 50m2
- Przed lokalem znajduje się duży parking ogólnodostępny
- Możliwe prowadzenie każdej działalności z wyłączeniem ciężkiej gastronomii
- Podana cena jest ceną netto, należy doliczyć VAT oraz opłaty eksploatacyjne
Zapraszam do kontaktu, z chęcią przedstawię nieruchomość!!
Sylwia Egier
Specjalista ds. Nieruchomości Komercyjnych
730 170 416
ul. Braci Wagów 20/1, 02-791 Warszawa
www.euro-house.waw.pl
Zachęcamy do kontaktu,
chętnie przedstawimy nieruchomość!
Treść niniejszego ogłoszenia nie stanowi oferty handlowej w rozumieniu Kodeksu Cywilnego. Treść ma charakter informacyjny i zalecamy ich osobistą weryfikację. Kontaktując się z biurem Klient wyraża zgodę na przetwarzanie danych osobowych zgodnie z przepisami ustawy z dnia 29 sierpnia 1997 roku o ochronie danych osobowych / Dz.U.Nr. 133 poz. 883/. Klientowi przysługuje prawo do wglądu do swoich danych osobowych i ich aktualizacji.